Esta moradia em construção pode oferecer-lhe todo o conforto e comodidade que necessita, aliado à sofisticação de um design moderno.
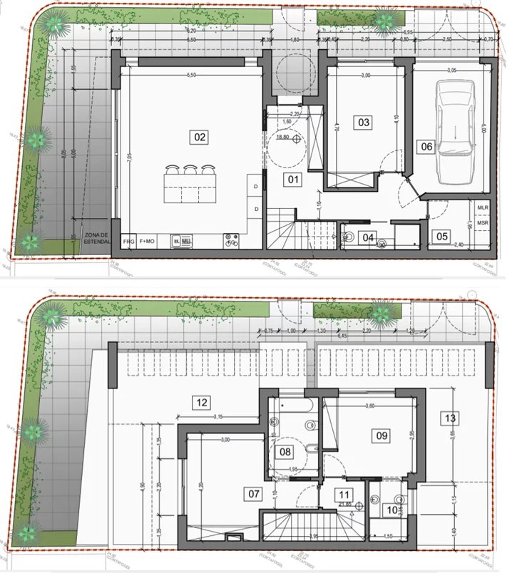
A moradia é composta por 2 pisos. No primeiro piso encontra uma sala e cozinha em open space com ilha, esta divisão tem imensa luz natural que entra pelas portas de vidro de correr com acesso a uma zona exterior muito prazerosa. No piso de baixo também tem um quarto, uma casa de banho, lavandaria, despensa e garagem. No 1º andar encontra 2 quartos em suite com ótimas varandas para desfrutar da vista desafogada.
Esta casa é ideal para todas as pessoas que desejem o melhor dos dois mundos. Está perto da oferta de comércio e serviço das cidades de Lagoa e Portimão e ao mesmo tempo está numa zona tranquila e calma. Localizada numa das zonas mais altas de Estômbar, Parchal, esta moradia oferece vista para o estuário do Rio Arade, Serra de Monchique e cidade de Portimão; e ainda beneficia de uma ótima exposição solar.
A construção desta magnífica moradia está a ser feita com materiais de ótima qualidade, com revestimento de capoto em toda a casa para oferecer uma boa condição térmica e acústica e ainda tem a vantagem de poder escolher os acabamentos ao seu gosto.
Prevê-se que a conclusão da obra aconteça em meados de 2026.
Agende já a sua visita para comprovar que esta é a casa que idealiza.