Terrenos à venda em Bandeiras, Madalena do Pico, inseridos num conjunto de 5 lotes destinados à construção de moradias unifamiliares. Localizados no Descansadouro, junto à Rua do Aeroporto, estes terrenos oferecem um ambiente calmo, com excelente exposição solar e integração natural na paisagem protegida da cultura da vinha, reconhecida como Património Mundial da UNESCO.
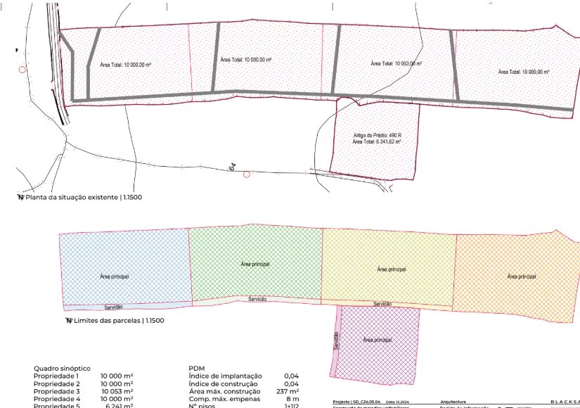
Cada lote permite uma implantação até 237 m², garantindo espaço suficiente para uma casa confortável, jardim e áreas exteriores. Cada lote tem entre 6200-10.000 m2.
A localização é um dos grandes destaques deste projeto. No raio de poucos minutos a pé encontram-se vários serviços essenciais: a escola e a creche estão a cerca de 450 metros, o mini-mercado local a aproximadamente 700 metros e a paragem de autocarro a apenas 200 metros. A apenas 5 km situa-se a vila da Madalena, onde se encontram supermercados maiores, bancos, comércio variado e o centro de saúde. Para momentos de lazer, a praia da Areia Larga está a cerca de 3,5 km, enquanto o Aeroporto do Pico fica a cerca de 4 km, trazendo enorme conveniência para residentes e visitantes.
Estes lotes representam uma oportunidade excecional para quem pretende construir numa zona valorizada e harmoniosa, onde a natureza, o mar e as vinhas tradicionais criam um cenário único. São ideais tanto para quem procura uma casa permanente num local tranquilo como para quem procura investir em propriedades com elevado potencial de valorização. Uma excelente solução para quem valoriza qualidade de vida, proximidade a serviços e uma envolvente autêntica e protegida.
O processo inclui um pedido de Informação Prévia já submetido e um dossiê técnico completo elaborado pelo arquiteto, com planta de localização, condicionantes, proposta de implantação e definição dos parâmetros de construção possíveis. Este trabalho prévio oferece uma base sólida para quem deseje desenvolver o seu projeto de moradia, garantindo clareza quanto aos requisitos e caminhos a seguir no licenciamento.
Entra em contacto para discutir as possibilidas neste terreno com vista maravilhosa!